Мы угадали ваш город?
Да, верно Нет, другой
0
8-495-147-57-35
8-800-333-85-37
Заказать звонок

Проектирование котельных

Заказав бесплатный выезд, Вы получите

  • Консультацию инженера по котельным установкам
  • Стоимость проекта котельной
  • Предварительную цену монтажа
  • Помощь в получении технических условий
  • Подробный план реализации котельной под ключ
Выезд бесплатно в течение
24 часов

Группа компаний НПК «Завод модульного энергооборудования» осуществит быстрое и комплексное проектирование котельных в Архангельске и Архангельской области, обследование, подготовку технических условий и исходных данных частных и промышленных котельных, работающих на любых видах топлива, проектирование промышленных дымовых труб, а также мини-ТЭЦ (электростанций) для нужд промышленных предприятий и застройщиков в Архангельске и по всей России.

Мы выполняем полный комплекс работ, от сбора исходных данных, до согласования в ресурсоснабжающих организациях и регистрации заключения Экспертизы Промышленной Безопасности в управлении Федеральной службы по экологическому, технологическому и атомному надзору (Ростехнадзор). Среди наших клиентов как частные застройщики, так и крупные промышленные предприятия.

Благодаря опыту наших инженеров, вы всегда будет иметь несколько вариантов проектных решений котельной, среди которых сможете выбрать наиболее оптимальное для отопления ваших зданий. Мы всегда учитываем энергосбережение и эксплуатационное удобство проектов

Мы осуществляем проектирование газовых котельных и на жидком топливе, паровых и водогрейных, блочно-модульных и стационарных.



Вы получите бесплатную консультацию, позвонив нам по телефону:
8-800-333-85-37

Или оставив заявку на звонок

ЗАКАЗАТЬ ЗВОНОК



Котельные большой мощности – это очень технически сложная работа, основанием для начала работ является Задание на проектирование, подписанное Заказчиком, а также Технические условия на подключение к сетям (электроснабжение, водоснабжение, газоснабжение).

Сроки выполнения работ будут рассчитываться с момента получения технических условий на подключение к сетям от ресурсоснабжающих организаций.


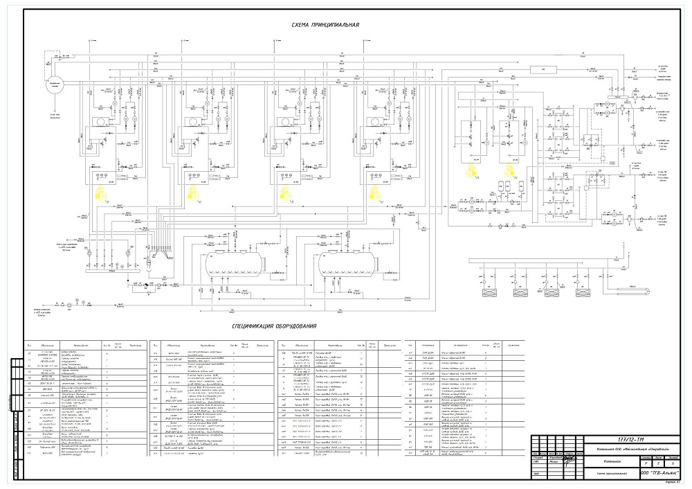
Проектирование промышленных котельных, паровых и водогрейных котельных

Проект паровых и водогрейных котельных   Проект паровых и водогрейных котельных

Специалисты нашей компании подготовят проект водогрейных и паровых котельных, с учётом каждой необходимой стадии его реализации: технико-экономическое обоснование (ТЭО), подготовка ТУ и рабочих проектов, промэкспертизу и авторский надзор.

Важная составляющая нашей работы – экспресс-анализ выбора топлива, которое будет использовано в работе котельной. Вы можете выбрать самый подходящий вариант из твёрдого, природного и жидкого газа, включая возможность использования производственных отходов в качестве энергоносителя.

Все разделы проектно-сметной документации наши инженеры выполняют самостоятельно, туда входит:

  • общая пояснительная записка;
  • внутреннее и наружное газоснабжение;
  • топливное хозяйство (котельные на жидком топливе);
  • тепломеханическая часть;
  • отопление и вентиляция;
  • водопровод, канализация внутренние и наружные;
  • водоподготовка;
  • электроснабжение и силовое оборудование (включая проект ТП);
  • электроосвещение внутреннее и наружное;
  • диспетчеризация котельных установок;
  • системы связи;
  • система ОПС;
  • автоматизация котельной;
  • тепловая изоляция (трубопроводов и оборудования);
  • генеральный план;
  • благоустройство;
  • архитектурно-строительные решения и конструкции котельной;
  • охрана окружающей среды;
  • мероприятия по ГО и ЧС.
  • сметная документация по разделам;

С нашей помощью вы сможете выбрать подходящее оборудование для вашей котельной от отечественных или зарубежных производителей, еще на этапе проектирования.


Проектирование газовых котельных

Проект паровых и водогрейных котельных  Проект паровых и водогрейных котельных

Необходимо помнить, что проектирование газовых котельных включает в себя ряд особенностей и этапов выполнения.

Появляется дополнительно необходимость проектирования системы газоснабжения, узла коммерческого учета газа, газорегуляторного пункта. Также к помещению предъявляются дополнительные требования в части пожарной безопасности помещения, оконных проемов либо легкосбрасываемых конструкций, и систем вентиляции.

Возможно, как устройство газовой котельной непосредственно в обслуживаемом здании, так и устройство отдельно стоящей газовой котельной.

Согласование проекта газоснабжения котельной необходимо выполнять до окончания проектных работ и выдачи готового проекта строительства котельной.

При проектировании газовой котельной стоимость работ зависит от протяженности наружных сетей газоснабжения и технических условий на присоединение к сетям газопотребления.


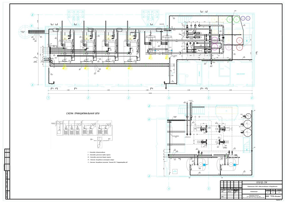
Проектирование блочно-модульных котельных

Группа компаний НПК «Завод модульного энергооборудования» осуществляет проектирование модульных котельных собственного производства перед поставкой Заказчику, с привязкой модулей к инженерным сетям на площадке строительства

Состав разделов проектно-сметной документации совпадает со стационарными котельными, отличие заключается в менее детальном отображении тепломеханических решений котельной и инженерных сетей на плане. При этом требования к содержанию раздела газоснабжения и коммерческого узла учета здания остаются прежними.

При разработке проекта необходимо грамотно осуществить привязку модульной котельной на земельном участке, соблюдая нормативные расстояния и требования экологии с учетом вредных выбросов в условиях окружающей застройки.

Техническое задание на проектирование блочно-модульных котельных является типовым, Вы можете ознакомиться с ним в разделе блочно-модульных котельных


Стоимость выполнения работ по проектированию котельной

Стоимость проекта котельной будет определена исходя из сметного расчёта. Мы учитываем несколько индивидуальных понижающих коэффициентов, что позволит вам сэкономить бюджет.

После того, как вы закажете наши услуги, специалисты прибудут на объект, проведут обследование и оперативно подготовят для вас смету со всеми необходимыми комментариями и пояснениями.

Примерная цена проекта газовой котельной в 2022 г. составляет:

  • Мощность котельной от 0,3 до 0,9 МВт – от 450 000 рублей
  • Мощность котельной от 1 МВт – от 600 000 рублей
  • Мощность котельной от 2 МВт – от 700 000 рублей
  • Мощность котельной от 3 МВт – от 800 000 рублей
  • Мощность котельной от 4 МВт – от 1 000 000 рублей
  • Мощность котельной от 5 МВт – от 1 200 000 рублей

Стоимость зависит от количества разделов рабочей документации и необходимости выполнения проектной документации, а также прохождения экспертиз.


Проектирование промышленных дымовых труб

Проектирование промышленных дымовых труб для котельных и технологического оборудования осуществляется в рамках разработки общей проектной и рабочей документации или отдельным проектом, в состав которого входят следующие разделы:

  • Раздел КМ - Конструкции металлические;
  • Раздел КР - Конструктивные решения;
  • Раздел АР - архитектурные решения.

Также технологические решения по дымовым трубам зачастую включают в разделы газоснабжения или теплоснабжения. При проектировании дымовых труб сложной конструкции или большой высоты обязательно оформление РО (расчётные обоснования)

Мы проектируем все виды дымовых труб и дымоходов, как самонесущие, так и с устройством ферм (ферменных дымовых труб) и фасадных.

Проектирование ведется с учетом местности и окружающей застройки, подбирая оптимальное и недорогое решение из возможных в соответствии с требованиями экологии, зоной рассеивания вредности и ветровой нагрузки.


Проектирование котельной для частного дома, дачи или коттеджа мощностью от 100 кВт

Такой вариант проекта намного проще, чем с промышленной котельной. Требования для таких котельных пониженные и разумеется, сроки проектирования будут намного меньше. Соответственно проектирование газовой котельной обычно не превышает 2-3 рабочих дня

Обычно Заказчики передают нам свои функции по сбору исходных данных и подготовке технических условий, чтобы сэкономить своё время и ускорить процесс согласований.


Цена проекта котельной в частном доме мощностью от 100 кВт

Как правило, цена типового проекта газовой котельной в частном жилом доме будет стоить от 40 000 рублей. При наличии специфических пожеланий Заказчика, и при необходимости разработки архитектурно-строительных решений, при размещении котельной на улице, цена может варьироваться в сторону увлечения.

Отметим, что проектирование котельных уже включает в себя стоимость проектирования систем наружного газоснабжения, сбор исходных данных и подготовки технических условий. В этом случае цена определяется в индивидуальном порядке.


Нашими основными партнерами являются такие известные производители оборудования, как Danfoss (Данфосс), Grundfos (Грюндфос), Kentatsu Furst (Кентатсу Фурст), Vaillant (Вайлант), Buderus (Будерус), Protherm (Протерм), Kermi (Керми), Prado (Прадо), Wilo (Вило), Rehau (Рехау), Uponor (Упонор), Daikin (Дайкин),ICI Caldaie (Ичи Калдае), FACI (Фачи) и многие другие.

Выберите ваш город
×
 Архангельск
Продолжая использовать наш сайт, вы соглашаетесь с условиями обработки cookie-файлов и пользовательских данных с помощью Яндекс.Метрика, необходимых для аналитики и улучшения качества работы сайта и сервиса. Запретить эти действия можно в настройках браузера